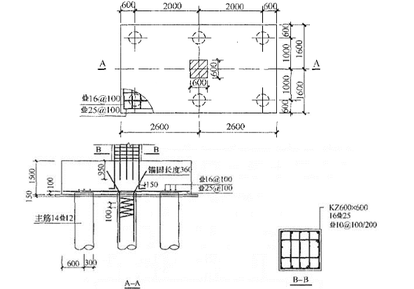
<p>某抗震等级为一级的6层框架结构,采用直径600mm混凝土灌注桩基础,无地下室,试问,题12图中有几处不符合《建筑地基基础设

分类: (结构) 专业考试一级 发布时间: 2023-11-03 00:56 浏览量: 1

某抗震等级为一级的6层框架结构,采用直径600mm混凝土灌注桩基础,无地下室,试问,题12图中有几处不符合《建筑地基基础设计规范》(GB50007—2011)及《建筑桩基技术规范》(JGJ94—2008)的构造要求?(  )

A.1

B.2

C.3

D.≥4

正确答案是D