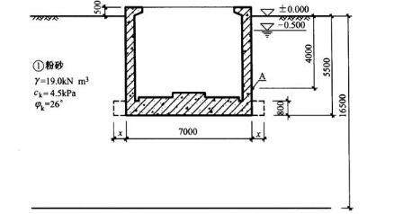
<p>某安全等级为二级的长条形坑式设备基础,高出地面500mm,设备荷载对基础没有偏心,基础的外轮廓及地基土层剖面、地基土参数如

分类: (结构) 专业考试一级 发布时间: 2023-11-03 00:56 浏览量: 0

某安全等级为二级的长条形坑式设备基础,高出地面500mm,设备荷载对基础没有偏心,基础的外轮廓及地基土层剖面、地基土参数如图所示,地下水位在自然地面下0.5m。 提示:基础施工时基坑用原状土回填,回填土重度、强度指标与原状土相同。 已知基础的自重为280kN/m,基础上设备自重为60kN/m,设备检修活荷载为35kN/m。当基础的抗浮稳定性不满足要求时,本工程拟采取对称外挑基础底板的抗浮措施。假定,基础底板外挑板厚度取800mm,抗浮验算时钢筋混凝土的重度取23kN/m3,设备自重可作为压重,抗浮水位取地面下0.5m。试问,为了保证基础抗浮的稳定安全系数不小于1.05,图中虚线所示的底板外挑最小长度x(mm),与下列何项数值最为接近?(  )

B.250

C.500

D.800

正确答案是B