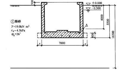
<p>某安全等级为二级的长条形坑式设备基础,高出地面500mm,设备荷载对基础没有偏心,基础的外轮廓及地基土层剖面、地基土参数如

分类: (结构) 专业考试一级 发布时间: 2023-11-03 00:56 浏览量: 0

某安全等级为二级的长条形坑式设备基础,高出地面500mm,设备荷载对基础没有偏心,基础的外轮廓及地基土层剖面、地基土参数如图所示,地下水位在自然地面下0.5m。 提示:基础施工时基坑用原状土回填,回填土重度、强度指标与原状土相同。

A.40

B.45

C.55

D.60

正确答案是B