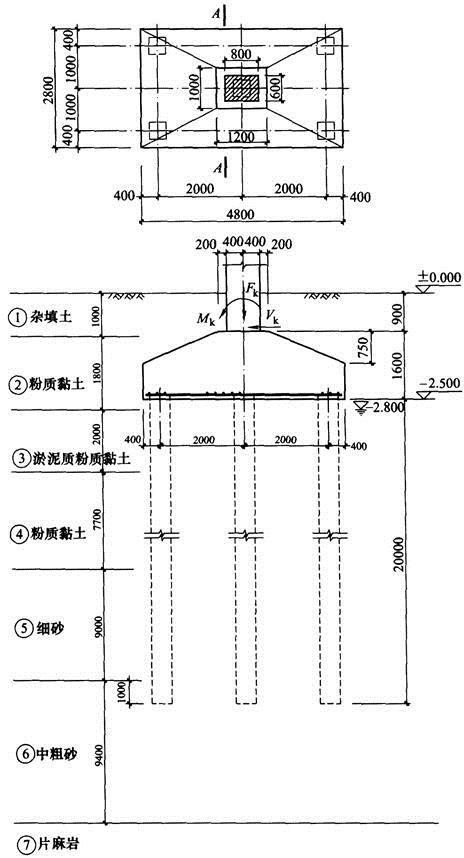
<p>某地基基础设计等级为乙级的柱下桩基础,承台下布置有5根边长为400mm的C60钢筋混凝土预制方桩。框架柱截面尺寸为600m

分类: (结构) 专业考试一级 发布时间: 2023-11-03 00:56 浏览量: 0

某地基基础设计等级为乙级的柱下桩基础,承台下布置有5根边长为400mm的C60钢筋混凝土预制方桩。框架柱截面尺寸为600mm×800mm,承台及其以上土的加权平均重度γ0=20kN/m3。承台平面尺寸、桩位布置等如图所示。 假定,荷载效应准永久组合时,承台底的平均附加压力值p0=400kPa,桩基等效沉降系数ψe=0.17,第⑥层中粗砂在自重压力至自重压力加附加压力之压力段的压缩模量Es=17.5MPa,桩基沉降计算深度算至第⑦层片麻岩层顶面。试问,按照《建筑桩基技术规范》JGJ94—2008的规定,当桩基沉降经验系数无当地可靠经验且不考虑邻近桩基影响时,该桩基中心点的最终沉降量计算值s(mm),与下列何项数值最为接近?(  ) 提示:矩形面积上均布荷载作用下角点平均附加应力系数。 注:a—矩形均布荷载长度(m);b—矩形均布荷载宽度(m);z—计算点离桩端平面的垂直距离(m)。

A.10

B.13

C.20

D.26

正确答案是A