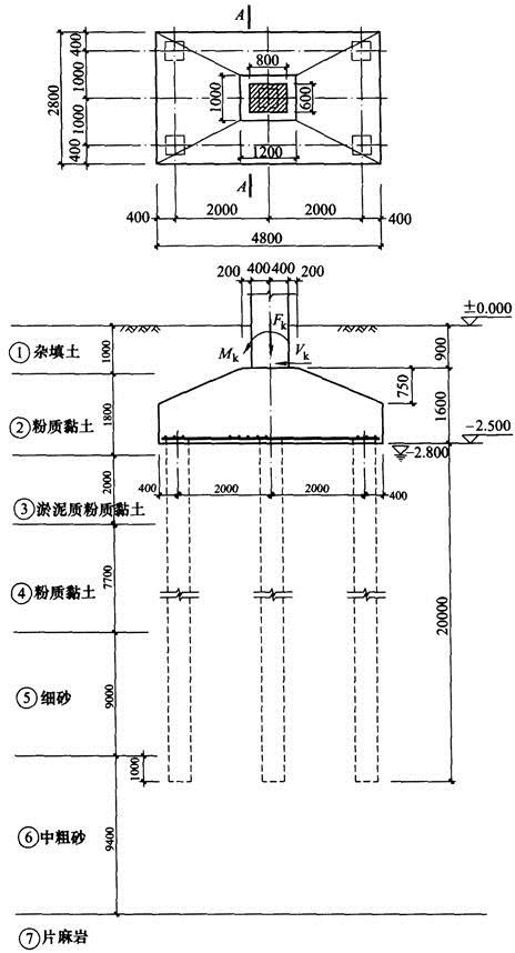
<p>某地基基础设计等级为乙级的柱下桩基础,承台下布置有5根边长为400mm的C60钢筋混凝土预制方桩。框架柱截面尺寸为600m

分类: (结构) 专业考试一级 发布时间: 2023-11-03 00:56 浏览量: 0

某地基基础设计等级为乙级的柱下桩基础,承台下布置有5根边长为400mm的C60钢筋混凝土预制方桩。框架柱截面尺寸为600mm×800mm,承台及其以上土的加权平均重度γ0=20kN/m3。承台平面尺寸、桩位布置等如图所示。 假定,桩的混凝土弹性模量Ec=3.6×104N/mm2,桩身换算截面惯性矩I0=213000cm4,桩的长度(不含桩尖)为20m,桩的水平变形系数α=0.63m-1,桩的水平承载力由水平位移值控制,桩顶的水平位移允许值为10mm,桩顶按铰接考虑,桩顶水平位移系数vx=2.441。试问,初步设计时,估算的单桩水平承载力特征值Rha(kN),与下列何项数值最为接近?(  )

A.50

B.60

C.70

D.80

正确答案是A