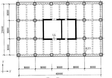
<p>某地上35层的现浇钢筋混凝土框架-核心筒公寓,质量和刚度沿高度分布均匀,如题23-27图所示,房屋高度为150m。基本风压

分类: (结构) 专业考试一级 发布时间: 2023-11-03 00:56 浏览量: 0

某地上35层的现浇钢筋混凝土框架-核心筒公寓,质量和刚度沿高度分布均匀,如题23-27图所示,房屋高度为150m。基本风压ω0=0.65kN/m2,地面粗糙度为A类。抗震设防烈度为7度,设计基本地震加速度为0.10g,设计地震分组为第一组,建筑场地类别为Ⅱ类,抗震设防类别为标准设防类,安全等级二级。 假定,结构基本自振周期T1=4.0s(Y向平动),T2=3.5s(X向平动),各楼层考虑偶然偏心的最大扭转位移比为1.18,结构总恒载标准值为600000kN,按等效均布活荷载计算的总楼面活荷载标准值为80000kN。试问,多遇水平地震作用计算时,按最小剪重比控制对应于水平地震作用标准值的Y向底部剪力(kN),不应小于下列何项数值?

A.7700

B.8400

C.9500

D.10500

正确答案是C