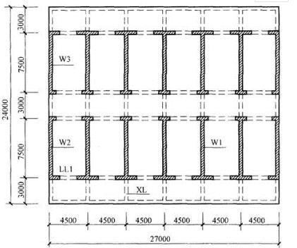
<p>某10层现浇钢筋混凝土剪力墙结构住宅,如题19-22图所示,各层层高均为4m,房屋高度为40.3m。抗震设防烈度为9度,设

分类: (结构) 专业考试一级 发布时间: 2023-11-03 00:56 浏览量: 0

某10层现浇钢筋混凝土剪力墙结构住宅,如题19-22图所示,各层层高均为4m,房屋高度为40.3m。抗震设防烈度为9度,设计基本地震加速度为0.40g,设计地震分组为第三组.建筑场地类别为Ⅱ类,安全等级二级。 提示:按《高层建筑混凝土结构枝术规程》(JGJ3—2010)作答。 假定,对悬臂梁XL根部进行截面设计时,应考虑重力荷载效应及竖向地震作用效应,在永久荷载作用下梁端负弯矩标准值MGk=263kN·m,按等效均布活荷载计算的梁端负弯矩标准值MQK=54kN·m。试问,进行悬臂梁截面配筋设计时,起控制作用的梁端负弯矩设计值(kN·m),与下列何项数值最为接近?

A.325

B.355

C.385

D.425

正确答案是D