<p>某办公楼为现浇混凝土框架结构,设计使用年限50年,安全等级为二级。其二层局部平面图、主次梁节点示意图和次梁L-1的计算简图

分类: (结构) 专业考试一级 发布时间: 2023-11-03 00:56 浏览量: 0

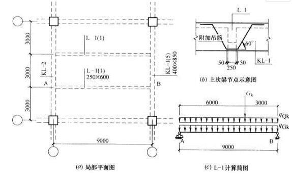
某办公楼为现浇混凝土框架结构,设计使用年限50年,安全等级为二级。其二层局部平面图、主次梁节点示意图和次梁L-1的计算简图如题1-3图所示,混凝土强度等级C35,筋均采用HRB400。 假定,次梁L-1传给主梁KL-1的集中荷载设计值F=220kN,且该集中荷载全部由附加吊筋承担。试问,附加吊筋的配置选用下列何项最为合适?

A.A

B.B

C.C

D.D

正确答案是A