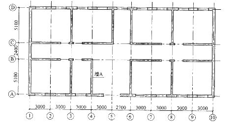
<p>—多层砖砌体办公楼,其底层平面如图所示D外墙厚370mm,内墙厚240mm,墙均居轴线中。底层层高3.4m,室内外高差30

分类: (结构) 专业考试一级 发布时间: 2023-11-03 00:56 浏览量: 0

—多层砖砌体办公楼,其底层平面如图所示D外墙厚370mm,内墙厚240mm,墙均居轴线中。底层层高3.4m,室内外高差300mm,基础埋置较深且有刚性地坪。墙体采用MU10烧结多孔砖、M10混合砂浆砌筑;楼、屋面板采用现浇钢筋混凝土板。砌体施工质量控制等级为B级。 假定底层横向水平地震剪力设计值F=3300kN,试问,由墙A承担的水平地震剪力设计值(kN),应与下列何项数值最为接近?

A.190

B.210

C.230

D.260

正确答案是B