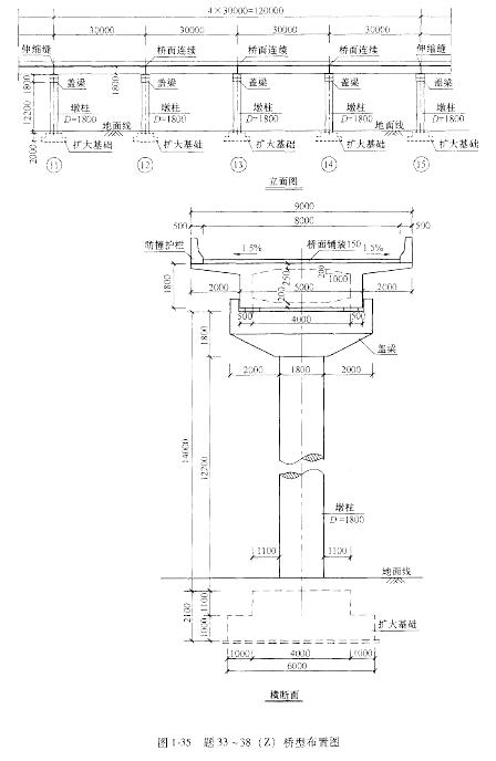
某城市快速路上的一座立交匝道桥,其中一段为四孔各30m的简支梁桥,其总体布置如图1-35所示。单向双车道,桥梁总宽9.0m,其中行车道净宽度为8.0m。上部结构采用预应力混凝土箱梁(桥面连续),桥墩由扩大基础上的钢筋混凝土圆柱墩身及带悬臂的盖梁组成。梁体混凝土线膨胀系数取
=0.00001。设计荷载:城-A级。
该桥的中墩为单柱T形墩,墩柱为圆形截面,其直径为1.8m,墩顶设有支座,墩柱高度H=14m,位于7度地震区。试问,在进行抗震构造设计时,该墩柱塑性铰区域内箍筋加密区的最小长度(m)与下列何项数值最为接近?

A.1.80
B.2.35
C.2.50
D.2.80
正确答案是D