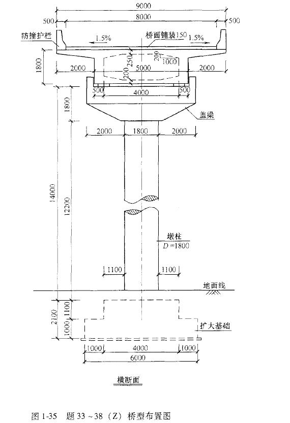
某城市快速路上的一座立交匝道桥,其中一段为四孔各30m的简支梁桥,其总体布置如图1-35所示。单向双车道,桥梁总宽9.0m,其中行车道净宽度为8.0m。上部结构采用预应力混凝土箱梁(桥面连续),桥墩由扩大基础上的钢筋混凝土圆柱墩身及带悬臂的盖梁组成。梁体混凝土线膨胀系数取
=0.00001。设计荷载:城-A级。
试问,当城-A级车辆荷载的最重轴(4号轴)作用在该桥箱梁悬臂板上时,其垂直于悬臂板跨径方向的车轮荷载分布宽度(m)与下列何项数值最为接近?


A.0.55
B.3.45
C.4.65
D.4.80
正确答案是B