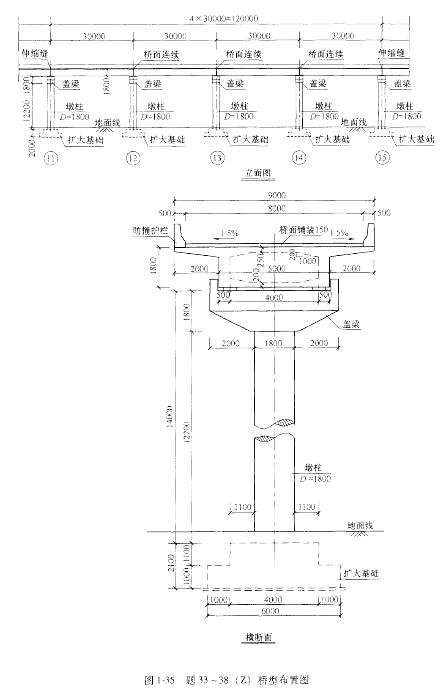
某城市快速路上的一座立交匝道桥,其中一段为四孔各30m的简支梁桥,其总体布置如图1-35所示。单向双车道,桥梁总宽9.0m,其中行车道净宽度为8.0m。上部结构采用预应力混凝土箱梁(桥面连续),桥墩由扩大基础上的钢筋混凝土圆柱墩身及带悬臂的盖梁组成。梁体混凝土线膨胀系数取
=0.00001。设计荷载:城-A级。
假定,计算该桥箱梁悬臂板的内力时,主梁的结构基频
=4.5Hz。试问,作用于悬臂板上的汽车荷载作用的冲击系数的μ值应取用下列何项数值?

A.0.05
B.0.25
C.0.30
D.0.45
正确答案是C