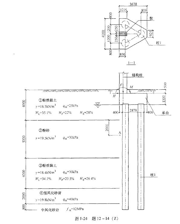
<p>某扩建工程的边柱紧邻既有地下结构,抗震设防烈度为8度,设计基本地震加速度值为<img alt="" src="https:

分类: (结构) 专业考试一级 发布时间: 2023-11-03 00:56 浏览量: 0

某扩建工程的边柱紧邻既有地下结构,抗震设防烈度为8度,设计基本地震加速度值为,设计地震分组第一组,基础采用直径800mm泥浆护壁旋挖成孔灌注桩,图1-24为某边柱等边三桩承台基础图,柱截面尺寸为500mmx1000mm,基础及其以上土体的加权平均重度为20kN/m3。提示:承台平面形心与三桩形心重合。 假定,粉砂层的实际标贯锤击数与临界标贯锤击数之比在0.7~0.75之间,并考虑桩承受全部地震作用。试问,单桩竖向承压抗震承载力特征值(kN)最接近于下列何项数值?

A.4000

B.4500

C.8000

D.8400

正确答案是A