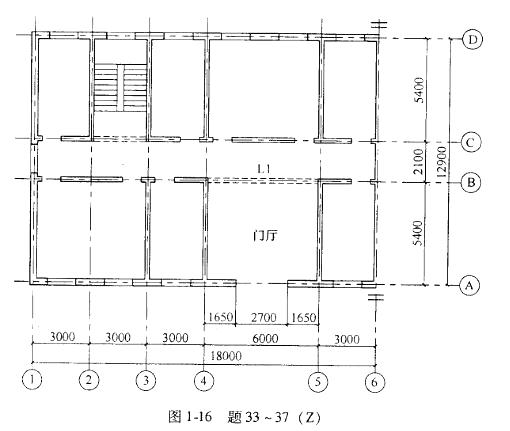
<p>某多层砖砌体房屋,底层结构平面布置如图1-16所示,外墙厚370mm,内墙厚240mm,轴线均居墙中。窗洞口尺寸均为150

分类: (结构) 专业考试一级 发布时间: 2023-11-03 00:56 浏览量: 1

某多层砖砌体房屋,底层结构平面布置如图1-16所示,外墙厚370mm,内墙厚240mm,轴线均居墙中。窗洞口尺寸均为1500mm×1500mm(宽×高),门洞口尺寸除注明外均为1000mm×2400mm(宽×高)。室内外高差0.5m,室外地面距基础顶0.7m。楼、屋面板采用现浇钢筋混凝土板,砌体施工质量控制等级为B级。

A.A

B.B

C.C

D.D

正确答案是B