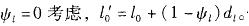
某工程由两幢7层主楼及地下车库组成,统一设一层地下室,采用钢筋混凝土框架结构体系,桩基础。工程桩采用泥浆护壁旋挖成孔灌注桩,桩身纵筋锚入承台内800mm,主楼桩基础采用一柱一桩的布置形式,桩径800mm,有效桩长26m,以碎石土层作为桩端持力层,桩端进入持力层7m;地基中分布有厚度达17m的淤泥,其不排水抗剪强度为9kPa。主楼局部基础剖面及地质情况如下图所示,地下水位稳定于地面以下1m,
为抗拔系数。
提示:按《建筑粧基技术规范》(JGJ94-2008)作答。
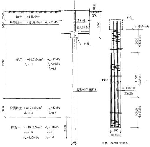
主楼范围的工程桩桩身配筋构造如上图,主筋采用HRB400钢筋,
若混凝土强度等级为C40,
,基桩成桩工艺系数
取0.7,桩的水平变形系数
桩顶与承台的连接按固接考虑。试问,桩身轴心受压正截面受压承载力设计值(kN)最接近下列何项数值?提示:撤泥土层按液化土、
A.4800
B.6500
C.8000
D.10000
正确答案是A