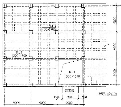
<p>钢筋混凝土框架结构多层办公楼局部平面布置如下图所示(均为办公室),梁、板、柱混凝土强度等级均为C30,梁、柱纵向钢筋HRB

分类: (结构) 专业考试一级 发布时间: 2023-11-03 00:56 浏览量: 0

钢筋混凝土框架结构多层办公楼局部平面布置如下图所示(均为办公室),梁、板、柱混凝土强度等级均为C30,梁、柱纵向钢筋HRB400钢筋,楼板纵向钢筋及梁、柱箍筋为HRB335钢筋。 架梁KI2的截面尺寸为300mmx800mm,跨中截面底部纵向钢筋为。已知该截面处由永久荷载和可变荷载产生的弯矩标准值。试问,该梁跨中截面考虑荷载长期作用影响的最大裂缝宽度与下列何项数值最为接近?

A.0.25

B.0.29

C.0.32

D.0.37

正确答案是B