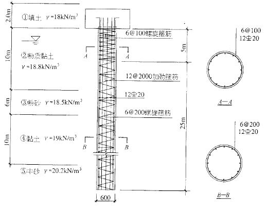
<p>某桩基工程采用泥浆护壁非挤土灌注桩,桩径d为600mm,桩长l=30m,灌注桩配筋、地基土层分布及相关参数情况如图3-20

分类: (结构) 专业考试一级 发布时间: 2023-11-03 00:56 浏览量: 1

某桩基工程采用泥浆护壁非挤土灌注桩,桩径d为600mm,桩长l=30m,灌注桩配筋、地基土层分布及相关参数情况如图3-20所示,第③层粉砂层为不液化土层,桩身配筋符合《建筑桩基技术规范》(JGJ94-2008)第4.1.1条灌注桩配筋的有关要求。 提示:按《建筑桩基技术规范》(]GJ94-2008)作答。 已知,建筑物对水平位移不敏感。假定,进行单桩水平静载试验时,桩顶水平位移6mm时所对应的荷载为75kN,桩顶水平位移10mm时所对应的荷载为120kN。试问,验算永久荷载控制的桩基水平承载力时,单桩水平承载力特征值(kN)与下列何项数值最为接近?

A.60

B.70

C.80

D.90

正确答案是B