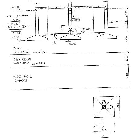
<p>某多层框架结构带一层地下室,采用柱下矩形钢筋混凝土独立基础,基础底面平面尺寸3.3mx3.3m,基础底绝对标高60.000

分类: (结构) 专业考试一级 发布时间: 2023-11-03 00:56 浏览量: 1

某多层框架结构带一层地下室,采用柱下矩形钢筋混凝土独立基础,基础底面平面尺寸3.3mx3.3m,基础底绝对标高60.000m,天然地面绝对标高63.000m,设计室外地面绝对标高65.000m,地下水位绝对标高为60.000m,回填土在上部结构施工后完成,室内地面绝对标高61.000m,基础及其上土的加权平均重度为20kN/m3,地基土层分布及相关参数如图所示。 假定,柱A基础采用的混凝土强度等级为C30(ft=1.43N/mm2),基础冲切破坏锥体的有效高度h0=750mm。试问,图中虚线所示冲切面的受冲切承载力设计值(kN)与下列何项数值最为接近?

A.880

B.940

C.1000

D.1400

正确答案是B