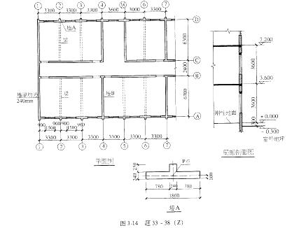
<p>某多层刚性方案砖砌体教学楼,其局部平面如图3-14所示。墙体厚度均为240mm,轴线均居墙中。室内外高差为0.3m,基础埋

分类: (结构) 专业考试一级 发布时间: 2023-11-03 00:56 浏览量: 0

某多层刚性方案砖砌体教学楼,其局部平面如图3-14所示。墙体厚度均为240mm,轴线均居墙中。室内外高差为0.3m,基础埋置较深且有刚性地坪。墙体采用MU10蒸压粉煤灰砖、M10混合砂浆砌筑,底层、二层层高均为3.6m;楼、屋面板采用现浇钢筋混凝土板。砌体施工质量控制等级为B级,结构安全等级为二级。钢筋混凝土梁的截面尺寸为250mmx550mm。 假定,墙B某层计算高度H0=3.4m。试问,每延米非抗震轴心受压承载力(kN),应与下列何项数值最为接近?

A.275

B.300

C.315

D.340

正确答案是C