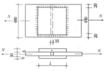
<p>图为两块钢板用拼接板连接,采用三面围焊缝,承受静力荷载作用。 <img alt="" src="https://lear

分类: (结构) 专业考试二级 发布时间: 2023-11-03 00:57 浏览量: 0

图为两块钢板用拼接板连接,采用三面围焊缝,承受静力荷载作用。 构件材料为Q345钢,焊条为E50型。焊脚尺寸hf=6mm,承受荷载N=1600kN,此连接需要的拼接板长度L最接近于()mm。

A.430

B.440

C.680

D.860

正确答案是B