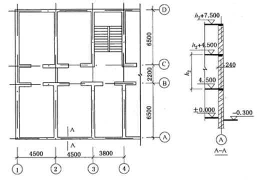
<p>某单跨仓库,如图所示。跨度15m,开间6m,共6个开间,属刚弹性方案。窗高3.6m,窗间墙宽2.4m,壁柱和墙厚见题图。檐

分类: (结构) 专业考试二级 发布时间: 2023-11-03 00:57 浏览量: 0

某单跨仓库,如图所示。跨度15m,开间6m,共6个开间,属刚弹性方案。窗高3.6m,窗间墙宽2.4m,壁柱和墙厚见题图。檐口标高+6.0m。砖砌体用MU10砖,M5混合砂浆。左柱的柱底承受的N=340kN。承受的弯矩:左风时,M左=26kN·m;右风时,M右=35kN·m。 当采用图所示的结构布置时,试问,按允许高厚比[β]值确定的A轴线二层承重外墙高度的最大值h2(m)应与下列()项数值最为接近。

A.5.3

B.5.8

C.6.3

D.外墙的高度不受高厚比的限制

正确答案是C