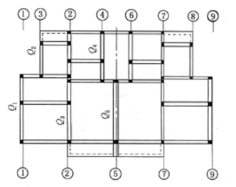
某6层住宅(图),各层层高为2.8m。室外高差为0.6m,基础埋深1.6m,墙厚190mm,建筑面积为1990.74m2,现浇钢筋混凝土楼屋盖。砌块为MU15,第1层到第3层采用Mb10砂浆,第4层到第6层采用Mb7.5混合砂浆,施工质量控制等级为B级。基础形式为天然地基条形基础。场地类别Ⅳ类,抗震设防烈度为7度(设计基本地震加速度为0.1g),设计地震分组为第二组。
已知各层的计算高度和各层的重力代表值(1.0静载+0.5活载)如表4-3所示。三层的地震作用标准值F3(kN)与下列何项数值相接近()

A.①轴
B.②轴
C.④轴
D.⑤轴
正确答案是C