<p>有一建造于Ⅱ类场地上的钢筋混凝土多层框架,抗震等级为二级,其中某柱的轴压比为0.7,混凝土强度等级为C30,箍筋采用HPB

分类: (结构) 专业考试二级 发布时间: 2023-11-03 00:57 浏览量: 1

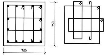
有一建造于Ⅱ类场地上的钢筋混凝土多层框架,抗震等级为二级,其中某柱的轴压比为0.7,混凝土强度等级为C30,箍筋采用HPB235,保护层厚度取25mm,剪跨比为2.1,柱断面尺寸及配筋形式如图所示。 下列箍筋的配筋,最接近于加密区最小体积配箍率要求的是?(  )

A.A

B.B

C.C

D.D

正确答案是D