<p>某城市拟在市中心地段新建一座集公寓、办公、宾馆、商业为一体的综合性建筑,用地朝向为南偏东13°,用地情况如下:   1.

分类: 城乡规划实务 发布时间: 2023-11-03 01:01 浏览量: 0

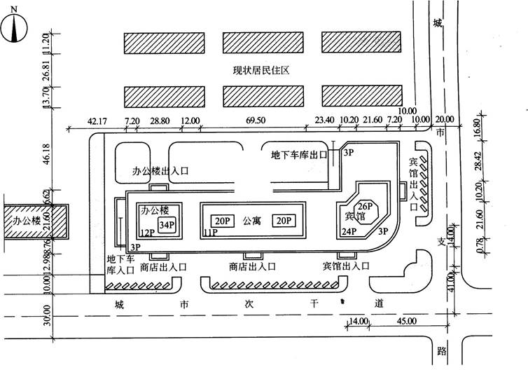
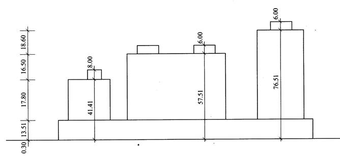
某城市拟在市中心地段新建一座集公寓、办公、宾馆、商业为一体的综合性建筑,用地朝向为南偏东13°,用地情况如下:   1.东侧为城市支路,道路红线宽度20m,退红线设10m宽绿化带;   2.南侧为城市次干道,道路红线宽度30m,退红线设15m宽绿化带;   3.北侧为现状居民区,全部为6层砖混住宅;   4.西侧为现状办公楼。   城乡规划部门提供的规划设计条件如下:   1.低层、多层建筑退绿线不少于5m;   2.高层建筑退绿线不少于15m;   3.建筑高度100m;   4.绿地率不少于15%;   5.停车车位:按照规范要求;   6.日照要求:板式建筑间距系数为1.51,塔式建筑间距为遮挡面面宽的1.2倍。 设计单位提供的图纸详见图6。 图6-1 总平面图 图6-2 南立面示意图   【问题】  请按照我国相关规定及规划管理部门提出的规划设计条件,指出设计图纸中存在的问题。

按照我国相关规定及规划管理部门提出的规划设计条件,设计图纸中存在的问题包括:   (1)新建建筑南侧未满足退次干道设置15m 宽绿化带的要求;   (2)不应该占用绿化带布置机动车停车场;   (3)沿街建筑物长度超过150m 时,应设消防车道;   (4)高层办公楼与高层公寓之间的间距不符合消防要求;   (5)高层公寓、宾馆裙房与北侧住宅之间的间距不足;   (6)高层建筑下部全部被裙房包围,不符合规范,应该有部分高层外墙直接垂直落地,并应该有直接对外出入口;   (7)地下出入口距城市干路交叉口过近;   (8)地下车库出入口位置设置不当,出入不方便。