<p>图4所示为某城市一所中学的设计方案示意图。 <img alt="" src="https://learnfile.202

分类: 城乡规划实务 发布时间: 2023-11-03 01:01 浏览量: 0

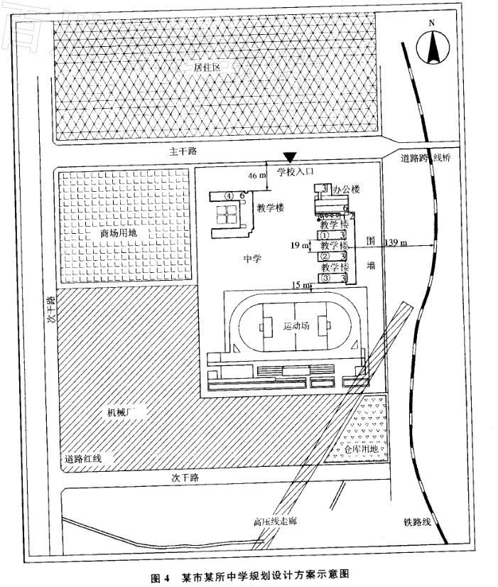
图4所示为某城市一所中学的设计方案示意图。 请指出学校选址及总平面设计中存在的主要问题。

1.环境选址不当。学校选址不应紧邻工业厂区,容易受到污染及噪声等的干扰。 2.校园内不允许有架空高压线通过。 3.主要教学楼层数过高,造成使用不便和安全隐患。教学楼一般不宜超过4层。 4.学校的出入口不宜开在城市主干道上,无法避免时,学校门前应留出足够的缓行地带,避免交通事故。 5.④号教学楼距离城市主千道太近,容易受到嗓音干扰。主要教学楼外墙与道路同侧路边距离不应小于80 m。 6.①、②、③号教学楼之间的距离过小,③号教学楼距离运动场太近。根据学校设计规范要求,教室长边相对或与运动场之间的间距应不小于25 m,以避免嗓声干扰。 7.教学楼与铁路间距不够。主要教学楼用房的外墙与铁路的距离不应小于300m。 8.运动场长轴方向不宜东西向布置,易造成眩光,影响使用。