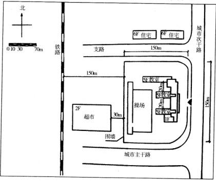
所示为某市市区边缘地段拟建的一所18班小学。

【问题】
请指出该小学在选址和总平面布置中存在的主要问题。
(1)小学选址不当,紧靠城市干道,且距铁路线太近。
(2)小学教学楼不应超过4层。
(3)主出入口不宜开向城市干道。
(4)教室长边之间距离不应少于25m。
(5)教室的长边与运动场的间距不应小于25m。
【解析】
此题主要考虑的是各种干扰因素。一方面是噪声干扰,比如铁路的交通噪声、城市道路的交通噪声、操场噪声、小学各教室之间声音。另一方面是交通干扰,小学出入口不宜开在城市干道上,不仅是家长接送学生带来的人车流集散容易影响城市干道交通.也是考虑学生安全。另外还可以考虑教学楼南北方向上的日照间距是否满足标准,教室应有充足日照采光。