<p>某拟建项目位于某市风貌建筑保护街区内的城市次干道与城市支路的交口处,总用地面积为2016m2,用地性质为办公建筑,除按有关

分类: 城乡规划实务 发布时间: 2023-11-03 01:01 浏览量: 3

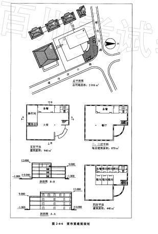
某拟建项目位于某市风貌建筑保护街区内的城市次干道与城市支路的交口处,总用地面积为2016m2,用地性质为办公建筑,除按有关规范规定的要求外,还提出以下规划条件,即:建筑限高12m,容积率不大于1.4,建筑密度不大于35%;建筑间距应满足南北向大于新建建筑高度的1.5倍,东西向大于新建建筑高度的1.2倍;建筑风格要求与周边现有建筑相协调,屋顶须采用坡屋顶形式。该建筑规划图如图2-4-6所示。 请你对图示方案进行审核,指出存在的问题。

该规划中存在的问题如下。 1.将办公建筑改为经营性建筑,用地性质不符合规划条件要求。 2.机动车出人口不应朝向两道路交叉口。 3.建筑高度超过12m限高。 4.与北侧建筑间距不够,与西侧建筑间距不够。 5.平屋顶不符合规划条件要求。 6.容积率超过规定值(1. 55>1. 4),不符合规划条件要求。 7.建筑密度超过规定值(46.6%>35%),不符合规划条件要求。 8.标准层建筑面积超过500m2时,应设两部以上疏散楼梯。