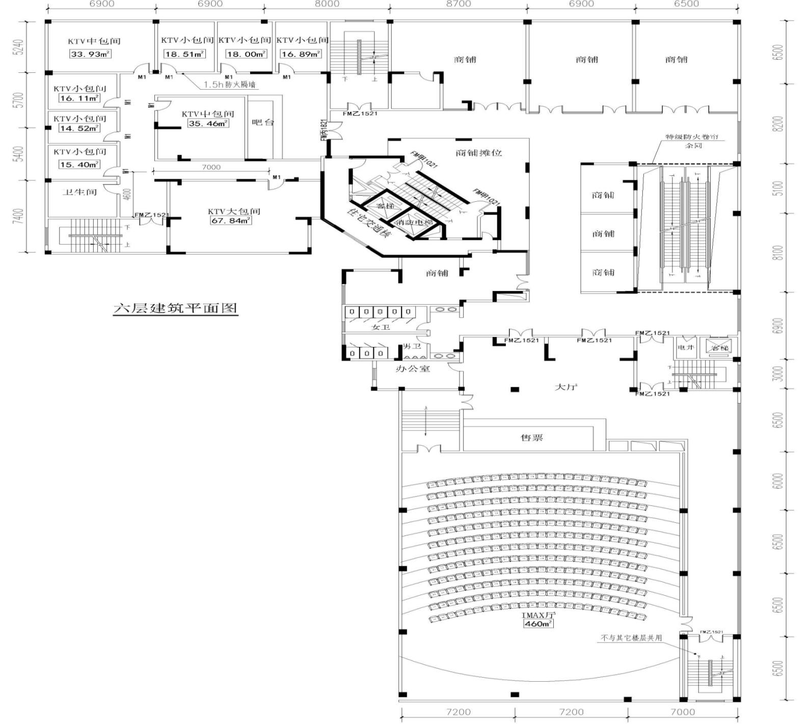
<p>某高层民用建筑,1~7层为商场,每层建筑面积为2200㎡,8~16层为住宅,每层建筑面积为1000㎡,建筑室外设计地面标高

分类: 消防安全案例分析(一级、二级) 发布时间: 2023-11-03 05:31 浏览量: 0

某高层民用建筑,1~7层为商场,每层建筑面积为2200㎡,8~16层为住宅,每层建筑面积为1000㎡,建筑室外设计地面标高为-0.5m,首层室内地坪标高为±0.0m,商场每层层高为5m,住宅平屋面面层标高为+62.0m,女儿墙墙顶标高为+62.7m,屋顶设有水箱间,建筑面积为200㎡,水箱间高度为3.6m。 该商场1~4层经营服装、首饰等,5层为儿童娱乐场所,6层为KTV、电影院和商铺,7层为餐饮场所,6层的KTV有大、中、小三种包间,大包间可容纳30人,中包间可容纳15人,小包间可容纳9人。电影院前后排座椅的排距均为0.90m。8层以上功能为住宅建筑,住宅与商场之间采用无门、窗、洞口的防火墙和1.5h的不燃性楼板完全分隔。该建筑按要求设置了消防设施。下图为该建筑6层平面图。 根据以上材料,回答下列问题: 1、计算该建筑的建筑高度,判断该建筑的建筑类型及建筑耐火等级并说明理由。(4分) 2、指出该建筑在平面布置方面存在的问题,并说明理由。(3分) 3、指出该建筑在安全疏散方面存在的问题,并说明理由。(7.5分) 4、指出该建筑在防火分隔方面存在的问题,并说明理由。(7.5分) 5、指出该建筑在灭火救援方面存在的问题,并说明理由。(3分)

1【答案】(1)女儿墙高度不计入建筑高度,水箱间面积占屋面面积为 200/1000=0.2 小于 1/4,因此也不计入建筑高度,该建筑的建筑高度为 0.5+62=62.5m。 (2)该建筑为一类高层公共建筑。理由:该建筑 1~7 层为商场,因此该建筑为公共建 筑,又因建筑高度为 62.5m,所以该建筑为一类高层公共建筑。 (3)该建筑耐火等级不应低于一级。理由:地下或半地下建筑(室)和一类高层建筑 的耐火等级不应低于一级。 2【答案】存在问题 1:5 层设置儿童娱乐场所。 理由:儿童娱乐场所,设置在一、二级耐火等级的建筑内时,应布置在首层、二层或三 层。 存在问题 2:电影院的 IMAX 厅,厅室建筑面积为 460 ㎡。 理由:电影院设置在一、二级耐火等级的建筑内时,确需布置在四层及以上楼层时,每 个观众厅的建筑面积不宜大于 400m2。 3【答案】存在问题 1:儿童娱乐场所未表明是否设置了独立的安全出口和疏散楼梯。 理由:儿童娱乐场所设置在高层建筑中时,应设置独立的安全出口和疏散楼梯。 存在问题 2:KTV 大包间建筑面积 67.84 ㎡,可容纳 30 人,设置了 1 个疏散门。 理由:歌舞娱乐放映游艺场所内建筑面积不大于 50m2且经常停留人数不超过 15 人的厅、 室才可以设置一个疏散门。 存在问题 3:住宅建筑的疏散楼梯可以直接通往商场。 理由:住宅部分与非住宅部分的安全出口和疏散楼梯应分别独立设置。 存在问题 4:疏散楼梯采用封闭楼梯间。 理由:住宅部分和非住宅部分的安全疏散、防火分区和室内消防设施配置,可根据各自 的建筑高度分别按照规范有关住宅建筑和公共建筑的规定执行。 该建筑商场部分总高度大于 24m,且满足 24m 以上有一整层的建筑面积大于 1000 ㎡, 为一类高层公共建筑应当设置防烟楼梯间。 存在问题 5:商铺的两个疏散门相邻布置。 理由:建筑内的安全出口和疏散门应分散布置,且建筑内每个防火分区或一个防火分区 的每个楼层、每个住宅单元每层相邻两个安全出口以及每个房间相邻两个疏散门最近边缘之 间的水平距离不应小于 5m。 4【答案】存在问题 1:KTV 厅室之间采用了耐火极限为 1.50h 的防火隔墙分隔。 理由:歌舞娱乐放映游艺场所厅、室之间及与建筑的其他部位之间,应采用耐火极限不 低于 2.00h 的防火隔墙和 1.00h 的不燃性楼板分隔。 存在问题 2:KTV 包间门未采用乙级防火门。 理由: 歌舞娱乐放映游艺场所设置在厅、室墙上的门应采用乙级防火门。 存在问题 3:住宅与商场之间采用了 1.5h 的不燃性楼板完全分隔。 理由:除商业服务网点外,住宅建筑与其他使用功能的建筑合建时,当为高层建筑时, 住宅部分与非住宅部分之间应采用无门、窗、洞口的防火墙和耐火极限不低于 2.00h 的不燃 性楼板完全分隔。 存在问题 4:电影院与其他区域分隔采用了乙级防火门分隔。 理由:电影院应采用耐火极限不低于 2.0h 的防火隔墙和甲级防火门与其他区域分隔。 存在问题 5:KTV 与其他区域采用了丙级防火门分隔。 理由:歌舞娱乐放映游艺场所与建筑内其他部位相通的门应采用乙级防火门。 5【答案】存在问题:该建筑设有一部消防电梯,商场部分仅有一部分商铺可通至该消 防电梯,商场的其他部分未设置消防电梯。 理由:(1)商场部分为一类高层公共建筑,应设置消防电梯。 (2)该建筑住宅部分与非住宅部分之间,应采用无门、窗、洞口的防火墙和耐火极限 不低于 2.0h 的不燃性楼板完全分隔。规范要求住宅和商场部分完全分隔,那么消防电梯应 当分别独立设置。