设计条件
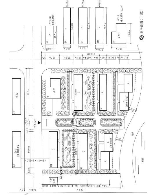
1.某小区用地,总用地面积为1.8公顷,拟建A、B、C、D四种类型住宅单体以及会所,小区用地尺寸及建筑单体尺寸如图所示。
2.小区用地北侧退道路红线5m,西侧退用地边界5m,南侧退湖滨10m,东侧退道路红线8m。

3.住宅沿街可设一层商店,层高4m。
4.用地东北角有古树。5.当地日照间距为1.3。
解题要点 1.根据日照间距系数布置住宅单体。 2.尽可能布置9层或11层住宅,以增大容积率。 3.场地出入口设于北侧。 作图提示 1.根据场地条件,首先布置会所的位置,设于场地东北角。 2.场地西北角应设置11F,由于北侧有道路,道路北侧住宅底部还有一层商店,距道路北侧较远,且底部设商业。 3.西北角11F西侧与旁边住宅间距为13m。 4.西北角11F南侧分别设置9F住宅以及4F住宅,并有一栋为景观建筑。 5.会所南侧分别为11F、6F、4F住宅,4F住宅中有一栋为景观建筑。 6.东侧建筑距道路红线8m。 7.场地出入口设于北侧。 8.容积率=(4A+B+C+2D+900)÷18000 =(4×25×12×4+50×10×6+50×12×9+2×50×12×11+900)÷18000 =27300÷18000≈1.52