首页
>
场地设计(作图题)
> 题目详情
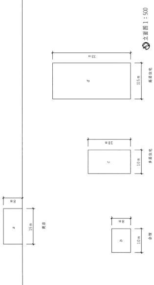
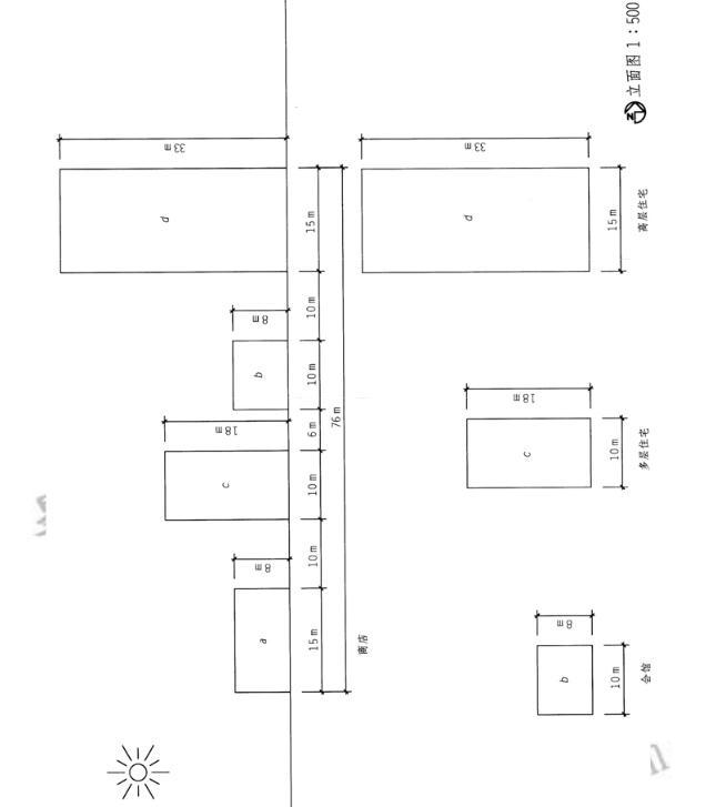
<p>设计条件 某住宅小区,日照间距系数为1.25。若要达到a、b、c、d四幢建筑物间距及基底总长度最短应如何布置? <im
分类: 场地设计(作图题)
发布时间: 2023-11-03 00:00
浏览量: 1
设计条件 某住宅小区,日照间距系数为1.25。若要达到a、b、c、d四幢建筑物间距及基底总长度最短应如何布置?
D
← 返回分类
返回首页 →
相关题目
<p>【设计条件】 ·某场地沿正南北向的剖面,如图(a)所示。 ·在城市道路与已建10层商住楼之间拟建一幢各层层高均为4.5
<p>【设计条件】 ·某场地沿正南北向的剖面,如图(a)所示。 ·在城市道路与已建10层商住楼之间拟建一幢各层层高均为4.5
<p>【设计条件】 ·某场地沿正南北向的剖面,如图(a)所示。 ·在城市道路与已建10层商住楼之间拟建一幢各层层高均为4.5
<p>【设计条件】 ·某场地沿正南北向的剖面,如图(a)所示。 ·在城市道路与已建10层商住楼之间拟建一幢各层层高均为4.5
<p>【设计条件】 ·某场地沿正南北向的剖面,如图(a)所示。 ·在城市道路与已建10层商住楼之间拟建一幢各层层高均为4.5
↑