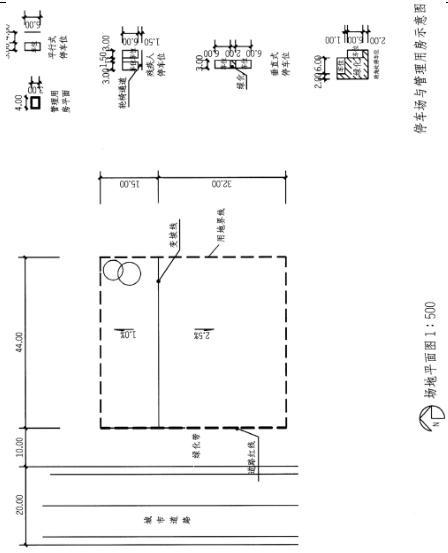
设计条件
1.某城市拟建机动车停车场,场地平面如图所示,要求场地地形不变,保留场地内树木,树冠投影范围不布置停车位。
2.要求在用地范围内尽可能多布置停车位(含残疾人停车位4个),并设管理用房一处,停车位与管理用房要求见示意图。
3.停车场内车行道宽不小于7m,要求车行道贯通,停车方式采用垂直式、平行式均可。
4.停车场出入口由城市道路引入,允许穿越绿化带,应采用右进右出的交通组织方式。
5.停车场设一个出入口时,其宽度不应小于9m;设两个出入口时,其宽度不应小于5m。
6.残疾人停车位地面坡度不应大于1:5007.停车带与用地界线之间需留出2m宽绿化带,残疾人停车位可不设。



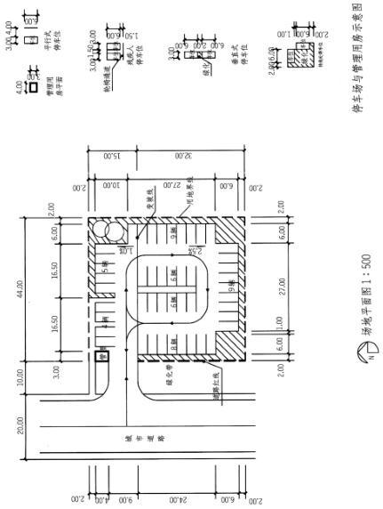
解题要点 1.满足设计任务书与题意要求。 2.停车场出入口数量及其最小间距应满足《汽车库、修车库、停车场设计防火规范》要求。 3.合理布置停车带和行车道。 4.尽可能形成环形车道,方便通行。特别是不同大小车辆的转弯半径布置。 5.车位尽可能多。 6.合理布置残疾人车位。 7.满足停车场周边绿化带退线要求。 作图提示 1.分析、计算与画(标)出停车位总数为47个,在46~48个车位选项里。 2.分析、计算与画(标)出停车场出入口数量为一个,宽度9m。 3.分析、计算与画(标)出残疾人车位应靠近停车场入口,并在后面设置残疾人通道。残疾人停车位位于停车场的北侧。