首页
>
场地设计(作图题)
> 题目详情
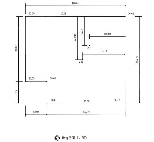
<p>设计条件 已知某场地的标高为10.05,平面尺寸28m×24m,西南角缺一块6m×6m,呈L形的平面。图中设有A点、B点
分类: 场地设计(作图题)
发布时间: 2023-11-03 00:00
浏览量: 0
设计条件 已知某场地的标高为10.05,平面尺寸28m×24m,西南角缺一块6m×6m,呈L形的平面。图中设有A点、B点。
B
← 返回分类
返回首页 →
相关题目
<p>【设计条件】 ·某场地沿正南北向的剖面,如图(a)所示。 ·在城市道路与已建10层商住楼之间拟建一幢各层层高均为4.5
<p>【设计条件】 ·某场地沿正南北向的剖面,如图(a)所示。 ·在城市道路与已建10层商住楼之间拟建一幢各层层高均为4.5
<p>【设计条件】 ·某场地沿正南北向的剖面,如图(a)所示。 ·在城市道路与已建10层商住楼之间拟建一幢各层层高均为4.5
<p>【设计条件】 ·某场地沿正南北向的剖面,如图(a)所示。 ·在城市道路与已建10层商住楼之间拟建一幢各层层高均为4.5
<p>【设计条件】 ·某场地沿正南北向的剖面,如图(a)所示。 ·在城市道路与已建10层商住楼之间拟建一幢各层层高均为4.5
↑