首页
>
场地设计(作图题)
> 题目详情
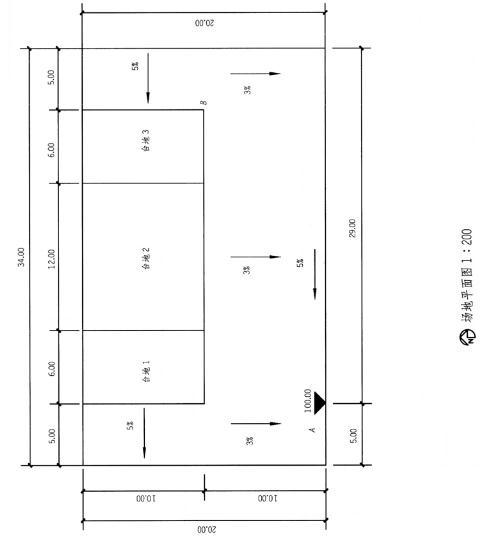
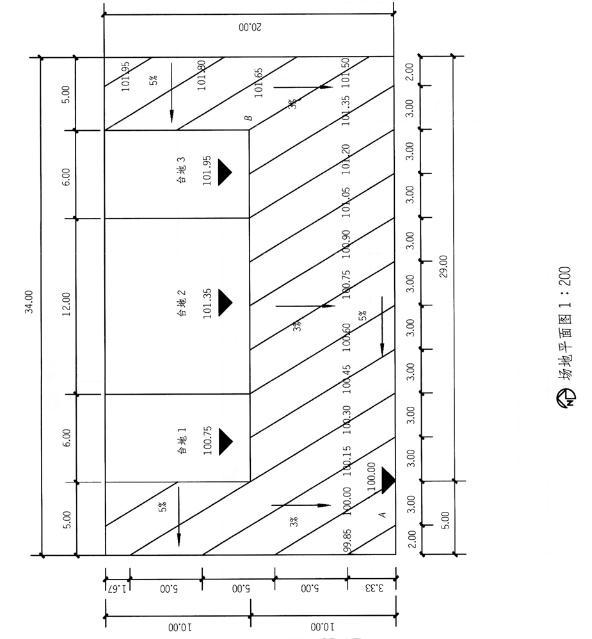
<p>设计条件 1.某坡地上已平整出三块台地,如图所示,试卷比例1:200。 2.每块台地均高于相邻坡地,台地与相邻坡地的最
分类: 场地设计(作图题)
发布时间: 2023-11-03 00:00
浏览量: 0
设计条件 1.某坡地上已平整出三块台地,如图所示,试卷比例1:200。 2.每块台地均高于相邻坡地,台地与相邻坡地的最小高差为0.15m。
D 参考评分标准
← 返回分类
返回首页 →
相关题目
<p>【设计条件】 ·某场地沿正南北向的剖面,如图(a)所示。 ·在城市道路与已建10层商住楼之间拟建一幢各层层高均为4.5
<p>【设计条件】 ·某场地沿正南北向的剖面,如图(a)所示。 ·在城市道路与已建10层商住楼之间拟建一幢各层层高均为4.5
<p>【设计条件】 ·某场地沿正南北向的剖面,如图(a)所示。 ·在城市道路与已建10层商住楼之间拟建一幢各层层高均为4.5
<p>【设计条件】 ·某场地沿正南北向的剖面,如图(a)所示。 ·在城市道路与已建10层商住楼之间拟建一幢各层层高均为4.5
<p>【设计条件】 ·某场地沿正南北向的剖面,如图(a)所示。 ·在城市道路与已建10层商住楼之间拟建一幢各层层高均为4.5
↑