设计条件:
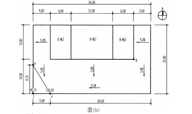
·某坡地上已平整出三块台地,如图(a)所示。
·每块台地均高于相邻坡地,台地与相邻坡地的最小高差为0.15m。
比例:1:200
单位:m

1.确定 100.00 等高线位置
由于题目已知基地南侧边界线上 100.00m 高程 A 点位置,故我们只需求出基地西侧边界线上高程为 100.00m 的点的位置,连接两点即可确定 100.00 等高线位置。已知 A 点高程为 100.00m,设定西南角为 C 点,C 点与 A 点之间距离为 5.00m,A、C 点之间坡度为 5%,由此可计算出 C 点高程为 100.00m-5.00m×5%=99.75m。下面我们可以找出西侧边界线上 100.00 标高点(H 点)的位置。已知 C 点高程为 99.75m,与 100.00m 高程相差 0.25m,南北方向上坡度为 3%,所以 C 点与 H点之间的距离为 0.25m/3%=8.33m。从 C 点垂直向北 8.33m 即为南北方向上高程为 100.00m 的点(H点)的位置。连接 AH,即为 100.00 等高线,如图(b)所示。
2.确定场地上其他等高线位置
由于题目要求场地内等高距为 0.15m,已知东西方向上场地坡度为 5%,可以得到东西方向上等高线间距为 0.15m/5%=3.00m,所以从100.00 等高线分别向西、东两侧以 3.00m 的距离依次作100.00 等高线的平行线,得到 99.85、100.15、100.30、100.45、100.60、100.75、100.90、101.05、101.20、101.35、101.50、101.65、101.80、101.95 等高线,如图(c)所示。
3.确定三个台地标高和 B 点标高根据题目要求,台地高程必须高于
坡地高程,且台地与坡地之间的最小高差是 0.15m。如图(d)所示,台地 1 最高高程点为 D 点 100.60m,则台地 1 高程为 100.60m+0.15m=100.75m。台地 2最高高程点为 E 点 101.20m,则台地 2 高程为 101.20m+0.15m=101.35m。台地 3 最高高程点为 F点 101.80m,则台地 3 高程为 101.80m+0.15m=101.95m,所以选择题第 4 题应选答案 D。台地 1与台地 2 相差高度为 101.35m-100.75m=0.6m,所以选择题第 2 题应选答案 C。看图可知,101.50m等高线正好与 B 点相交,故 B 点高程为 101.50m,选择题第 1 题应选答案 B。 台地 2 高程为 101.35m,台地 2 原地形中最低点高程为 100.60m(D 点),所以台地 2 与原地形最大高差为 101.35m-100.60m=0.75m,选择题第 3 题应选答案 B。
