【设计条件】
·某城市拟建室外停车场。场地平面如图(a)所示。
·要求在用地范围内尽可能多布置停车位,停车位大小及布置要求如图(b)所示。停车场内车行道宽度≥7m,要求车道贯通,一律采用垂直式停车方式。
·沿用地周边至少留出2m宽的绿化带。
·停车场内设置管理用房,平面尺寸为5m×6m,设在入口处。
·出入口设置在场地北侧并满足《民用建筑设计通则》的要求。

1.确定出入口的数量
先估算总的停车位数量,根据总的停车位数量确定出入口的数量。如前所述,可按照每辆车所需停车面积 47 m
左右估算,用场地的面积除以 47 m
/辆,即可得出场地大致的停车位数量。
本题中,停车场总面积为 48m×43m=2264 m
,2264 m
/47(m
/辆)≈48 辆<50 辆,所以该停车场需设一个出入口。
2.确定出入口位置
按照题目要求绘制出基地四周 2m 宽绿化带。
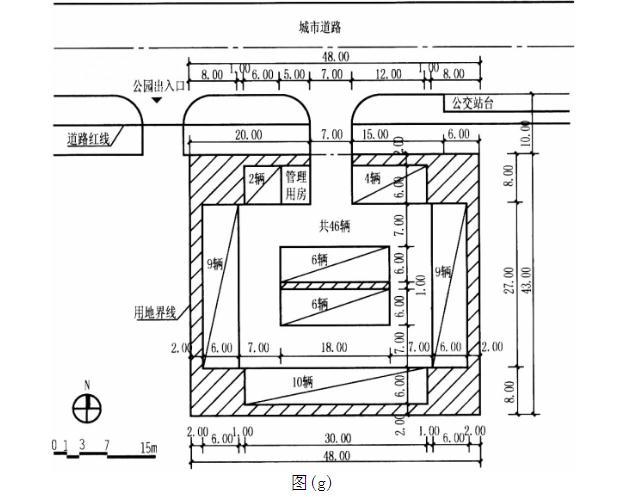
根据规范,基地机动车出入口位置距公园、学校、儿童及残疾人使用建筑的出入口不应小于20m;距地铁出入口、公共交通站台边缘不应小于15m。停车场出入口尺寸为 7m,所以本题停车场出入口只能设在场地北侧中央,距离用地西侧界限 20m 的位置,如图(c)所示。
3.确定停车带的布置方向
本题中场地宽度为 43m≈21m×2=42m,符合停车带参考规则②,选择双面停车带的布置方式,可布置两组。停车带东西向布置 4 排,行车道东西向布置两道。为最大限度的布置停车位数量,
应选择环通式行车道,东、西两侧分别布置垂直停车位。结果如图(d)所示。
4.布置管理用房
管理用房应布置在停车场出入口附近,方便管理人员管理和收费。本题可将其布置于停车场的南侧出入口旁边。管理用房尺寸为 6m×5m,如图(e)所示。
5.计算停车位数
根据场地的尺寸,可以计算得出每一处停车带停车数量及停车总数。如图(f)所示,场地北侧可停车 6 辆,南侧可停车 10 辆,场地西侧 9 辆,场地东侧 9 辆,中间可停车 12 辆,停车总数为46 辆。所以选择题第 1 题应选答案 C。

6.标注相关尺寸、出入口位置及停车带停车数量及停车总数(图 g)
