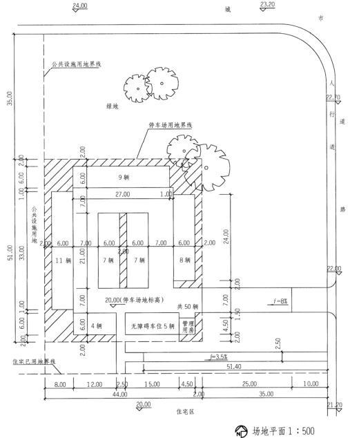
设计条件
1.在如图所示用地内拟建停车场。停车场的车辆出入口和无障碍通道均由城市道路引入。停车场外2.5m宽的人行通道与住宅区相通。
2.要求在用地内尽可能多地布置停车位(含无障碍停车位4个)。停车位大小及布置要求见右图。停车场出入口及场内通车道宽度不小于7.00m。停车方式一律采用垂直式。
3.由城市道路引入的无障碍通道宽度不小于2.5m,坡度应符合方便残疾人使用的城市非机动车道的要求。
4.沿用地周边至少留出2.00m宽绿化带(无障碍停车处不设),树冠下不停车。
5.停车场内设置管理用房,面积尺寸见右图。



解题要点
1.停车位布置合理。
2.停车场机动车出入口位置正确,布置合理。
3.满足无障碍停车位及无障碍车道要求。
4.行车路线顺畅,宽度正确。
5.管理用房及绿化带布置合理。
6.注意引道的坡度与道路交叉点的设计。
7.满足停车场与住宅区相通的人行通道的使用要求。
作图提示
1.超过50辆的停车场必须设置两个机动车出入口,而50辆以下(含50辆)可设一个机动车出入口。采用垂直停车位布置,树冠下不能停车。(本题停车位总数为50辆)。
2.主入口宽度≥7m并设在场地东面。
3.引道坡度小于或等于10%。
4.无障碍停车位应靠近主入口布置,车位后面设轮椅通道。连接城市道路的通道位置合理,坡度≤3.5%,宽度≥2.5m。
5.车行线贯通,其内部车行线道宽≥7m。
6.管理用房靠近机动车出入口。绿化带绘制正确。
7.绘制草图,布置车位及计算车数,调整出入口的位置及引道坡度。
8.标注尺寸及必要的文字说明。
参考评分标准
