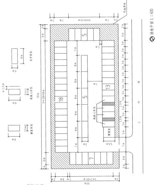
设计条件
1.拟建停车场用地界线如图。
2.垂直停车位尺寸为3m×6m,水平停车位尺寸为3m×8m。不少于4个残疾人停车位。行车道宽7m,并应形成环路。
3.沿用地界线内侧至少留出2m宽绿化带,当垂直转角停车时应退让1m。
4.停车场入口处设5m×5.5m管理室一栋。


解题要点 1.停车场出入口数量及其最小间距。 2.停车带和行车道的布置以及停车数量。 3.停车位尽可能最多。 4.绿化带和管理用房的布置。 5.无障碍设计规范。 作图提示 1.根据《汽车库、修车库、停车场设计防火规范》,停车场停车数量不大于50辆时设一个出入口。 2.停车场要贯通布置,形成环路。