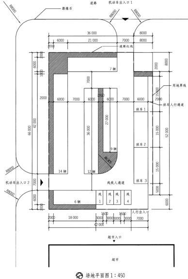
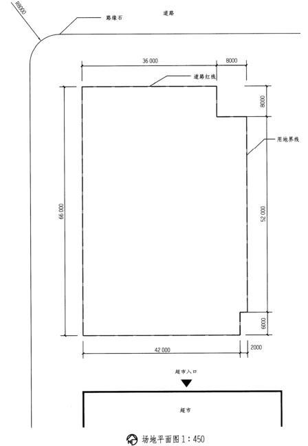
<p>设计条件 1.某超市拟建停车场,用地界线如图所示。 2.沿用地界线内侧至少留出2m宽绿化带,如果设计成纵横垂直排列停车

分类: 场地设计(作图题) 发布时间: 2023-11-03 00:00 浏览量: 0

设计条件 1.某超市拟建停车场,用地界线如图所示。 2.沿用地界线内侧至少留出2m宽绿化带,如果设计成纵横垂直排列停车方式时,其转角处应退让1m。 3.垂直小轿车停车位尺寸为3m×6m,班车为15m×6m与2m宽的专用通道,班车停车位不应少于3个,应设置不少于4个残疾人停车位与2m宽的专用通道,并应设无障碍通道通向建筑入口。 4.车行道宽7m,并尽可能形成环形车道。

D 参考评分标准