设计条件
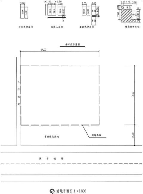
1.某地拟建停车场,用地见图,试卷比例1:500。
2.要求在用地范围内尽可能多布置停车位(含残疾人停车位4个),停车位大小及布置要求见停车位示意图。
3.停车场内车行道宽度不小于7m,要求车行道贯通,停车方式采用垂直式和平行式均可。
4.停车带与用地界线间需留出2m宽绿化带,残疾人停车位处可不设。
5.停车场出入口由城市道路引入,引道宽度单车道为5m,双车道为7m,要求引道尽可能少占用市政绿化用地。
6.停车场内设置一处管理用房,平面尺寸为6m×6m。


解题要点 1.停车场出入口数量及其最小间距应满足《汽车库、修车库、停车场设计防火规范》要求。 2.合理布置停车带和行车道。车位尽可能布置合理与多设。 3.尽可能形成环形车道,方便通行。特别注意不同大小车辆的转弯半径布置。 4.按要求合理进行残疾人车位设置。做到位置与尺度正确,方便使用。 作图提示 1.停车场车行出入口由城市道路接入,设置两个。 2.停车采用垂直式,周边与中心岛结合成组成片连贯布置。 3.车道宽度7m,形成回路。 4.残疾人车位靠近建筑入口,并在后面设置残疾人通道,管理室离残疾人车位较近,方便管理。