设计条件
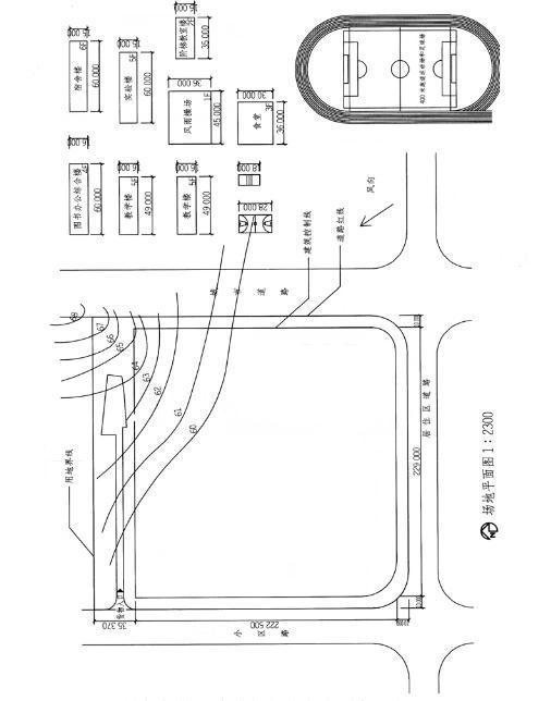
1.某场地平面如图所示,拟在场地内建一所全日制中学,场地北面均为坡地。
2.场地东面为城市道路,西面为拟建小区,南面为已建居住区。
3.建筑单体尺寸和层数如图所示。
4.该场地日照间距系数为1.5。
场地内具体应建有以下建筑物与设施:
A.教学楼两栋
B.阶梯教室楼一栋
C.图书办公综合楼一栋
D.实验楼一栋
E.宿舍楼两栋
F.食堂一栋
G.风雨操场一个
H.400m跑道运动场和足球场一个
I.篮、排球场地各两个
J.布置面积为3000m
的主入口前广场、停车场地、自行车停车场地、场地道路及绿化等。
以上拟建建筑与设施的层数、形状及尺寸均如图所示。


解题要点
1.根据日照间距系数,建筑之间应满足日照间距要求。
2.满足消防、通风及减噪距离要求。
3.满足《中小学校建筑设计规范》的相关要求。
作图提示
1.根据《中小学校建筑设计规范》的相关要求规定,学校主要教学用房距城市道路边缘的距离至少应为80m,因此将400m运动场布置在东南,临近城市道路,以拉开教学用房与城市道路的距离。
2.教学区应该与运动场保持一定距离,以避开噪声干扰,从这里考虑,将教学区布置于西南向上。
3.根据《中小学校建筑设计规范》规定,学校的主入口不宜开在城镇干道或机动车流量每小时超过300辆的道路上,但同时作为主入口,又应与周围保持紧密的联系,场地南邻居住区道路,交通较为方便,因此将主入口布置在了南向中间。
4.生活区应与教学及图书办公综合楼既联系又分区明确,且应与货物入口紧密联系,因此布置在北侧。
5.根据《中小学校建筑设计规范》规定,校门前应留出一定缓冲距离,因此将任务书规定的3000m
主入口前广场布置于此。
6.风雨操场应与教学区分开,因此将其与篮、排球场布置于东南角处。