<p>设计条件 1.沿正南北方向的场地剖面如图所示,试卷比例1:500。 2.在保留建筑与已建商住楼之间的场地上拟建住宅楼、

分类: 场地设计(作图题) 发布时间: 2023-11-03 00:00 浏览量: 0

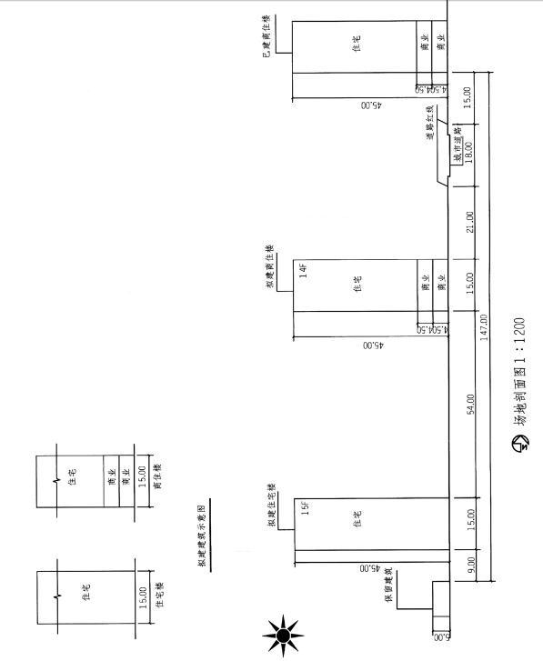
设计条件 1.沿正南北方向的场地剖面如图所示,试卷比例1:500。 2.在保留建筑与已建商住楼之间的场地上拟建住宅楼、商住楼各一栋,其剖面及尺寸见示意图。 3.商住楼一、二层为商业,层高为4.50m;住宅层高均为3.00m。 4.规划要求拟建建筑高度为45.00m,拟建建筑后退道路红线不小于15.00m。 5.保留、已建、拟建建筑均为条形建筑,正南北向布置,耐火等级多层为二级,高层为一级。 6.当地住宅建筑的日照间距系数为1.5。 7.应满足国家有关规定要求。

A