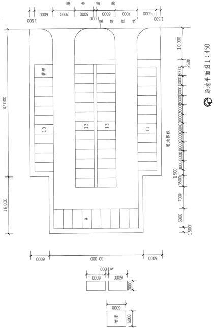
<p>设计条件 1.在城市道路一侧空地布置小型汽车停车场,位置如图所示。 2.在进行停车场布置时应满足如下条件: (1)在

分类: 场地设计(作图题) 发布时间: 2023-11-03 00:00 浏览量: 2

设计条件 1.在城市道路一侧空地布置小型汽车停车场,位置如图所示。 2.在进行停车场布置时应满足如下条件: (1)在用地范围内尽可能多布置停车位(不考虑残疾人停车位),停车位大小及布置要求见下页图。 (2)停车场行车道需贯通布置且宽度不小于7m。 (3)停车场出入口需设5m×6m大小管理用房一幢。 (4)两车相背时,留出绿化带不小于1m。 (5)用地范围后退用地界限1.5m做绿化带,沿城市道路一侧需后退道路红线10m做绿化带。

D