设计条件
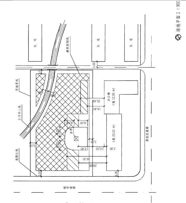
某场地平面,南面及东面有已建成的办公楼及住宅,拟在用地内
兴建普通住宅或别墅,城建规划部门对用地要求如下:
1.建筑控制线:西面和北面后退用地界线5m,东面和南面后退用地界线3m。
2.距小河中心线5m范围内、距古亭四边8m范围内不能作为建筑用地。
3.当地日照间距系数采用:普通住宅1:1.2,别墅1:1.7(不考虑古亭日照间距)。


解题要点
根据给定的条件和任务要求确定普通住宅及别墅的最大可建范围。
作图提示
1.绘制建筑控制线。西、北面退后用地界线5m,东、南面退后用地界线3m,距小河中心线5m,距古亭四周8m。
2.根据场地平面图建筑方位条件和日照间距系数,普通住宅和别墅与南向办公楼的日照间距分别为:
普通住宅:
20×1.2=24m
12×1.2=14.4m
别墅:
20×1.7=34m
12×1.7=20.4m
3.画线并绘制阴影线。
4.标注必要的尺寸及文字说明。
参考评分标准
