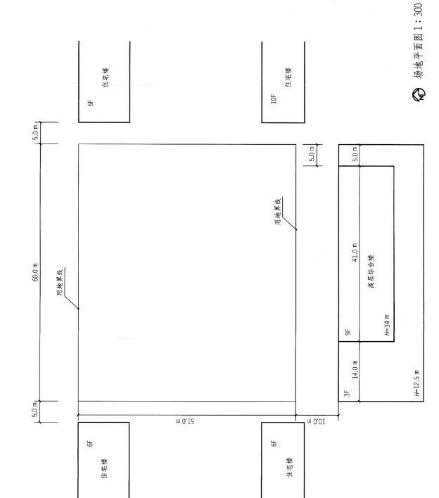
<p>设计条件 1.某已征建设用地,拟建高层住宅楼或高层办公楼。场地东西两 侧为住宅楼,距场地5m,位置如图所示。 2.场

分类: 场地设计(作图题) 发布时间: 2023-11-03 00:00 浏览量: 0

设计条件 1.某已征建设用地,拟建高层住宅楼或高层办公楼。场地东西两 侧为住宅楼,距场地5m,位置如图所示。 2.场地南侧为高层综合楼,主楼高34m,群房高12.5m。 3.拟建建筑北、东、西三面后退用地界线5m:南面如果作为高层 办公用地,则后退用地界线8m。南面如果作为高层住宅用地,则后退用地界线3m。 4.当地住宅日照间距系数为1.2。

C