<p>设计条件 1.某中学预留用地如图所示,要求在已建门卫和风雨操场的剩余用地范围内做拟建教学楼和办公楼的最大可建范围分析,拟

分类: 场地设计(作图题) 发布时间: 2023-11-03 00:00 浏览量: 0

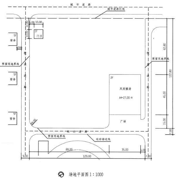
设计条件 1.某中学预留用地如图所示,要求在已建门卫和风雨操场的剩余用地范围内做拟建教学楼和办公楼的最大可建范围分析,拟建建筑高度均不大于24m。 2.拟建建筑退城市道路红线≥8m,退校内道路边线≥5m。风雨操场南侧广场范围内不可布置建筑物。 3.预留用地北侧城市道路的机动车流量170辆/小时。 4.教学楼的主要朝向应为南北向,日照间距系数为1.5。 5.已建建筑和拟建建筑的耐火等级均为二级。6.应满足《中小学校设计规范》要求。

A