设计条件
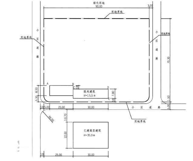
1.某居住小区建设范围用地地势平坦,用地内拟建高层住宅,用地范围及现状如图所示,试卷比例1:500;
2.规划要求拟建建筑后退用地界线≥5m:
3.该地区住宅日照间距为1.2;
4.既有建筑和拟建建筑的耐火等级均为二级。


解题要点
1.正确理解与掌握建筑防火、日照、通风间距与城乡规划控线要求,以及适用情况。
2.满足低层、多层与高层民用建筑设计防火规范要求。
作图提示
1.东、西、北后退用地界线5m。
2.方案一:保留用地范围内的既有建筑,正确设置拟建建筑与既有建筑之间的防火间距≥9m。
3.拟建建筑与既有建筑之间日照间距≥18.6m,拟建建筑与已建高层建筑之间日照间距≥42m。
4.方案二:拆除用地范围内的既有建筑,则不需要考虑与既有建筑之间的防火间距问题。
5.拟建建筑与已建高层建筑之间日照间距≥42m。 6.方案一拟建用地范围的面积为3434.18m
,方案二拟建用地范围的面积为4221m
,两者面积差约为786.82m
≈787m
。