设计条件
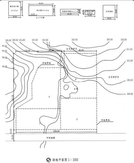
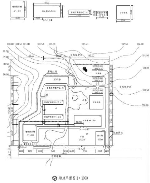
1.在某风景区内拟建一座疗养院,其用地及周围环境如图所示,建设内容如下:
(1)建筑物:a.普通疗养楼3栋;b.别墅型疗养楼3栋(自设厨房、餐厅)
;c.餐饮娱乐楼一栋;d.综合楼一栋(包含接待、办公、医技、理疗等功能)各建筑物平面尺寸、层数、高度及形状见下页图。
(2)场地:a.主入口广场面积>1000m
;b.机动车停车场面积>600m
;c.活动场地30m×30m。
2.规划及设计要求:
(1)建筑物退用地红线≥10m。
(2)应考虑用地周边环境,应保留场地中原有水系及古树,建筑物距古树树冠及水系岸边均不得小于2m。
(3)各建筑物及活动场地的形状、尺寸不得变动并一律按正南北方向布置。
(4)疗养楼日照间距系数为2.0。
(5)普通疗养楼、综合楼、餐饮娱乐楼之间需设一层通廊(或廊桥)连接,通廊宽度为4m,高度为3m。


解题要点 1.满足《疗养院建筑设计规范》的相关要求。进行合理功能区块分区与布局,广场、道路与景观系统组织。 2.根据《疗养院建筑设计规范》的相关要求,总平面设计应充分注意基地原有地貌、地物、园林、绿化、水面等的利用。 3.正确理解与掌握建筑防火、日照(疗养楼日照间距系数为2.0)、通风、减噪防噪间距与城乡规划控线要求以及适用情况。 4.应考虑用地周边环境,应保留场地中原有水系及古树,满足建筑物距古树树冠及水系岸边均不得小于2m的要求。 5.各建筑物及活动场地的形状、尺寸不得变动并一律按正南北方向布置。 6.普通疗养楼、综合楼、餐饮娱乐楼之间需设一层通廊(或廊桥)连接。 作图提示 1.根据题目要求和疗养院的功能要求,场地中北向为生态保护区,而疗养院需要安静的场所,故应布置于北向。由于别墅型疗养楼有自己的厨房、餐厅,单独成为一体,不与餐饮娱乐楼放在一起,因此放在B地块。 2.普通型疗养楼需要与餐饮娱乐放在一起,便于送餐管理,因此放在A地块。 3.综合楼作为整个场地的主体楼,应放在主入口附近。再加上要求的停车场与广场的设置,根据地块只能放在D地块。 4.餐饮、娱乐楼应与主要道路临近,又要与普通型疗养楼临近,通过走廊连接,因此应放在C地块。 5.根据设计条件绘制总平面图、画出建筑物、场地、道路、绿化,注明各建筑物及场地名称。标注主入口广场和停车场面积。标注疗养院出入口,并用[1535533307(1).gif]表示。 6.注明相关尺寸。